tvzeb experimental zero energy building

The goal of the project was to develop a low-impact building that blended seamlessly into the surrounding natural setting and showcased the visual, renewable energy and user well-being resources.
Project Name
tvzeb experimental zero energy building
Case Study Type
Architects
Photographer Details
ORCH Alessandro Chemollo, Francesco Castagna, Foto Di Cantiere

Overview

tvzeb is an experimental zero energy building brought to fruition by a cooperative endeavour between the traverso-vighy architecture studio and the University of Padua’s Department of Technical Physics.

Nestled in the wooded hills a few kilometers from the historic center of Vicenza, the building was conceived as a new, environmentally sound architecture studio.

The goal of the project was to develop a low-impact structure that blended seamlessly into the surrounding natural setting and showcased the visual, renewable energy and user well-being resources of its context both in form and function.

Natural light permeates the building by reflection from the internal fixtures in mill finished aluminum and is one of the key elements used to achieve comfort for the building occupants as well as reduction in energy consumption.

Daylight is complemented by an accurate and efficient artificial lighting system that combines light from three different sources, tracks the sun’s position, and supplements the outdoor light’s spectrum and color temperature values.

tvzeb is entirely powered by internal energy sources (wood combustion, solar and geothermal energies) which, as designed using the technological excellence of the project’s partner companies, will render the building completely self-sufficient, thereby fulfilling the European Directive 2010/31/EU that prescribes all new public buildings from 2020 to be zero-energy buildings.

 

Structure

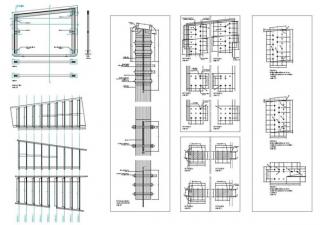
Similarly to other architectural projects developed by the studio, the building structure was designed and manufactured offsite by a network of small industrial and craft companies, combining CNC machined and handcrafted components.

The larch glulam and galvanized steel structure is suspended along two longitudinal lines of the foundation and was dry assembled onsite.

All building components are made from recyclable and/or recycled materials and can be dismantled.

This reflects the project’s commitment to the concept of potential reversibility and respect for the land: the building can be disassembled at the end of its lifecycle and its materials can be separated and recycled, restoring the site to the natural landscape.

The materials and external finishes were conceived to simulate the surrounding environment, in an effort to quietly insinuate the studio’s presence within the landscape and to embody its transitory nature.

The main elements that guided the building’s form and tvzeb’s direction were the view of the natural environment and the results of comprehensive simulations aimed at defining and capturing the normal seasonal variants of temperature and sunlight to enhance building performance.

The building structure extends outwards conically facing south, incorporating a design that maximizes sunlight exposure during the winter months and excludes direct radiation entirely during summer months.

Lightweight Building

The foundation is positioned in order to transfer the load of a very lightweight structure built with eco-friendly materials to the earth below. A reinforced concrete base plate rests suspended on the foundation. The skeleton framework is composed of glulam timber portals that also support the second level floor.

Prefab Building

All the building components were manufactured offsite and dry assembled onsite. Prefabrication of wood, glass and metal elements was almost entirely accomplished with CNC machinery, thus guaranteeing precision, quality and reduced assembly time – roughly four months for construction, excluding site excavation

Building Dismantlement

Dismantling is a concept that is also closely related to the principle of awareness and respect of the environment: once the building’s function has ended, the site can be returned to its host environment. It also preserves the potential for recycling all the materials used in its construction.

Exterior

Landscape

Site location had a strong influence on determining the evolution of the Tvzeb project, dictating a marked awareness of the environment and an ongoing relationship with the natural context surrounding the building. The façade overlooking the woods affords the occupants with ample views of the seasonal and circadian changes in light.

Energy from the Sun

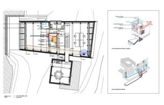
Photovoltaic panels cover the roof of the minor building block. This system supplies the annual energy demand of all the building’s functions.

From the woods

During the winter months, insulation and heating created by the studio computers maintain stable internal air temperatures. In addition, a wood stove, connected to radiant panels provides even distribution of heating in the entire building.

Rainwater Harvesting

Rainwater is captured in water storage tanks to meet the demands of irrigating the surrounding garden.

Local Suppliers of Recycled and Recyclable Materials

The entire building was realized with the support of a pool of companies in the Veneto Region. Their collaboration and expertise were essential in developing and applying the necessary technology to achieve the project goals. The supply of all the materials, as well as the technological development required to create the building, originated within a radius of 70 km from the construction site.

All the materials were selected on the basis of their recyclability or given that they derived from recycled products. In order to achieve this, for example, indoor and outdoor materials are free of surface finishes or varnishes, permitting natural rusting and aging to occur as an inherent value in the quality of the building. Likewise, the insulating panels are made with 180 mm of polyester fibre wadding from 40,000 recycled plastic bottles.

Interior

Solar Building

The overall design of the building and its orientation were designed to maximise the benefits of the solar cycle by exploiting heat rays during winter when the sun’s position allows sunrays to penetrate through the building envelope, and to effectively shade the building in summer months by blocking out the sunlight.

Natural Ventilation

Complementing the role of the building envelope during the intermediate seasons, the indoor temperature is regulated by an automatic control system that opens some operable windows connected to sensors that measure the natural ventilation of indoor spaces.

Geothermal Energy

A geothermal heat pump at the center of the building controls the temperature of the flow of air and water, taking advantage once again of the studio’s proximity to the woods and the stable microclimatic conditions of the subsoil with a 40m underground earth tube at a depth of 1.5 m.

Daylight

Natural daylight plays a fundamental role in the project both in terms of indoor climatic conditions and in terms of visual comfort and wellbeing of the building occupants. The building was conceived as a “daylight funnel” facing south, incorporating a design that maximizes sunlight exposure during the winter months and excludes direct radiation entirely during summer months.

Circadian lighting

Natural light is integrated by an accurate and efficient indirect lighting system that involves a sequence of LED bars recessed into the floor. The light from this source is reflected off the internal walls fitted in mill-finished aluminum. Each bar combines light from three different LED sources (natural white 4000°K, cool white 6000°K, and amber), dynamically supplementing and emulating the natural light spectrum that penetrates the building envelope from outdoors.

Related case studies

Are you looking for a supplier?

Start Your Search