NSW
Australia
























Overview
IMBY stands for In My Back Yard. It is a building kit that encapsulates the simplicity and elegance of ancient woodworking techniques with the efficiency and sustainability of digital fabrication and renewable resources, to provide occupants with an easy to assemble and low cost space solution that you can configure, and re-configure, to
respond to what life throws your way.
The IMBY aesthetic is unique and captivating, more than a style it is the raw expression of its materials (almost exclusively plantation timber) and how it goes together.
The structure of the Imby consists of a modular portal frame system, extendable as spatial needs dictate, and connected together using interlocking mortice and tenon joints. These joints form an integral part of the intuitive assembly process, a major objective of the Imby Kit – to empower people to build their own flexible, easy to assemble and beautiful architecture…in their back yards.
Through the use of standard sheet sizes of 2400x1200 of cost effective structural plywood sheets, and gearing the design around automated milling/fabrication processes, the Imby dramatically increases efficiency in construction while reducing waste. By reducing waste we reduce cost. From a social perspective Imby Kit aims to create a system that the occupants themselves are able to assemble without specific training or tools. Saving a huge amount on builder's labour as well as materials. From a time perspective, the prefabricated nature of Imby Kit shortens the time the build takes place and delivery time for the kit of parts. The part based kit is also well suited to difficult access sites where cost for cranes would make traditional building prohibitive as well as destructive for delicate ecosystems on natural sites.
-31.2532183, 146.921099
Structure
Engineered Timber
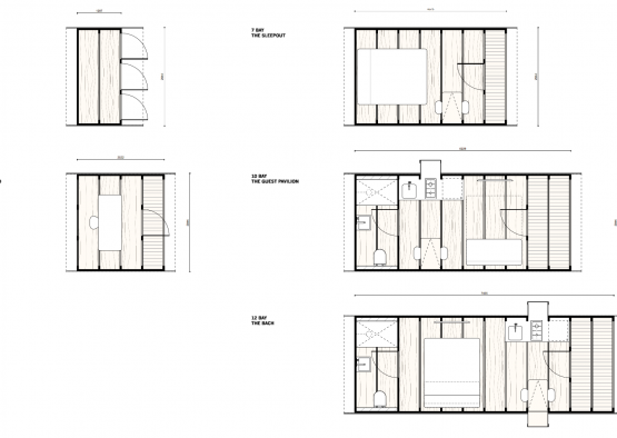
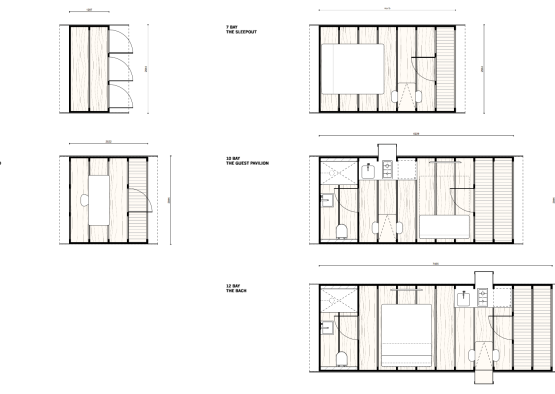
At the heart of the Imby is a 600mm x 2850mm structural module made up of FSC Certified plantation pine plywood layered up to form a series of portal frames that support the roof, wall and floor claddings/linings. The 600mm long bays can be added or subtracted as spatial needs dictate, or multiple Imby’s can be placed side-byside to extend floor area, or provide a series of pavilions in the landscape.
Interlocking wedge-through mortice and tenon joints form an integral part of the frame’s intuitive assembly process, allowing people not trained in construction to rapidly erect the main structural elements. Due to it's strength in all directions and suitability for being milled on a CNC router to precise tolerances needed to create interlocking building parts. Engineered timber was also selected due to its ability to enhance the qualities of "softwood" to perform in buildings in higher strength applications such as structural portal frames. It does this while making full use of timber during the manufacturing process.
Birch plywood lining was BB grade to allow for a clean internal surface that could be exposed without any need for applied finishes.
Sustainability
The backbone of the Imby Kit is a network of interlocking wedge-through mortice and tenon joints. This forms an integral part of the frame’s intuitive assembly process, allowing people not trained in construction to rapidly assemble the kit, re-locate it and re-configure it as their shelter needs change. Giving occupants the ability to simply, affordably and sustainably adapt their own living environments. From a social sustainability perspective Imby Kit aims to improve affordable access to good design and joyful built environments. The modular bays and optional design extras (such as pop-out windows, skylights, fold-down table) contain the design logic needed to enable this.
The prefabricated nature of Imby Kit improves material efficiency as well as shortens build time. The parts-based kit is also well suited to difficult access sites where the cost for cranes would make traditional building techniques prohibitively expensive as well as destructive for delicate ecosystems. By designing around automated milling processes and parametric design techniques, the structure is engineered to be lean yet able to withstand regular wind and live loads. Screw pile foundations eliminate the need for high embodied energy products like concrete. This foundation system also means the kit can be easily moved, re-located, adjusted or flat-packed and shipped somewhere else. Avoiding landfill and being deployed elsewhere.
Imby Kit is almost exclusively made from FSC Certified plywood sourced from sustainably managed plantations. It can be re-located, added to, or flat packed and put into use somewhere else, reducing waste from changing spatial needs or personal preferences. The design embraces the many natural qualities of timber, putting them to use structurally and aesthetically, inside and outside the building. This means that no finishing products are required as timber is expressed in various ways and forms the final aesthetic. Cladding is charred, naturally extracting the protective oils from within timber to provide insect, UV and fire resistance.
Humans long to be connected to natural things and environments. Imby Kit creates indoor environments that connect the occupants to the natural qualities of timber (grain, texture, smell, colour change...) while also being small enough to nestle into natural environments with minimal footprint. Embodied energy in the fabrication of the Imby Kit is kept to a minimum thanks to a design that is geared for automated timber milling (CNC milling) and the optimal use of timber's structural characteristics, where structural rigidity is achieved via the sum of all its parts.
By “nesting” multiple parts on a 1200×2400 standard building sheet such as sustainably grown plantation pine plywood, we achieve maximum use of the material, which is good for the pocket as well as the planet.
Exterior
Timber Cladding: Solid timber profiles have been used for the cladding. Splayed WRC weatherboards underwent a charring process followed by a clear coat of water-based sealer. The cladding is beautiful, hardy, weathers in place and quickly becomes part of the site.
Interior
Timber Flooring: Plantation structural plywood was used for the flooring. The timber is warm underfoot, easily machined as part of the kit of parts, texture, and grain. A simple and modest material such as structural plywood can be used in so many ways simply by creating a system of interlocking parts.